ST MARGARETS BAY – GUIDE PRICE FROM: £395,000

An opportunity to be part of an exciting redevelopment and reimagining of Grade 2 listed Victorian former Coastguard cottages into exceptional seaside homes.

PART OF AN EXCEPTIONAL REFURBISHMENT OF GRADE 2 LISTED FORMER COASTGUARD COTTAGES.

CHOICE OF 3 APARTMENTS FORMED FROM THE UNUSUAL TURRET SHAPED EAST WING SUBERB LOCATION OVERLOOKING THE ENGLISH CHANNEL

SEMI CIRCULAR LOUNGE        DINING HALL               FULLY EQUIPPED KITCHEN

 2 BEDROOMS BATHROOM AND ENSUITE SHOWEROOM

SECURE GATED COMMUNAL GROUNDS (Approximately 1.7 acres).

DESIGNATED PARKING            SHARED OUTSIDE STORAGE ROOM

EPC: C 

An opportunity to be part of an exciting redevelopment and reimagining of Grade 2 listed Victorian former Coastguard cottages into exceptional seaside homes.

There are just 3 apartments created from the turret shaped east wing of the building, with the semi-circular shape giving an interesting feel to the main living rooms as well as providing panoramic views.

The village of St Margaret’s at Cliffe offers local shopping, post office, doctor’s surgery with pharmacy, newsagent/general store, primary school (Ofsted rated as ‘outstanding’), churches and two riding stables, whilst The Bay itself is sheltered for bathing, fishing, sailing etc.  The cliff top to either side of The Bay is mainly in the care of the National Trust and offers some delightful walks.  There are golf courses at nearby Kingsdown and Deal with St George’s at Sandwich (the venue of the 2020 British Open).  The nearby award-winning seaside town of Deal offers a good range of small boutique style shops, a Saturday market and a selection of restaurants, bars and pubs. The Cathedral City of Canterbury offers an excellent shopping centre together with leisure interest, theatres and county cricket.   Excellent links to the continent via the Port of Dover the Channel Tunnel and Eurostar from Ashford and London (St Pancras), 75 minutes from Martin Mill station (approx. 2 miles). 

ENTRANCE LOBBY

Stairs to;

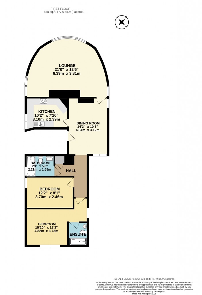
FIRST FLOOR

LANDING

Door to: 

DINING HALL

Column radiator. 

LOUNGE

A fabulous semi-circular room with triple aspect giving panoramic views over the gardens The South Foreland valley and the Channel.  Column style radiator, stepped shelving. 

KITCHEN

Fitted with a range of Shaker style floor and wall cupboards with quartz worktops with inset sink.  Built in Neff appliances, oven, induction hob with extractor canopy/light, fridge/freezer and dishwasher.  Cupboard housing ‘Worcester’ gas fired boiler, column style radiator. 

From the dining room is a hallway with; column style radiator, cupboard with plumbing for washing machine and access hatch to roof space. 

BATHROOM

Panelled bath with wall mounted shower over and glazed screen, hand basin with drawers under.  WC with concealed cistern, chrome ladder style radiator, towel rail, tiled floor with under floor heating. 

BEDROOM 1

Column radiator, door to: 

ENSUITE SHOWER ROOM

Double width shower cubicle with glass screen, hand basin with drawers under, WC with concealed cistern, tiled floor with underfloor heating, chrome ladder style radiator/towel rail. 

BEDROOM 2

Column style radiator. 

OUTSIDE

Access via remote control electric entrance gates.  Residents’ car park with designated parking space.  Shared outside storage room. Approximately 1.7 acres of communal gardens grasses and wildflowers. 

 

NB: The photographs shown are for apartment No 2COUNCIL TAX: TBC 

SERVICE CHARGE FOR COMMUNAL AREA: TBC 

MAINS GAS, ELECTRIC, WATER & DRAINAGE 

INSURANCE BACKED 10 YEAR WARRANTY – DETAILS TBC 

SM1412

  • Price: £395,000 
  • Bedrooms:
  • Bathrooms:
  • Status offer line: Available